Ремонт и отделка в Краснодаре
Золотые руки
Без стресса с удовольствием с 2004 года
г. Краснодар, ул. Бабушкина, 146, оф. 404
Время работы с 09:00 до 18:00
Заказать звонок

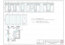
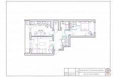
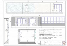
Дизайн-проект интерьера 2-х комнатной квартиры по ул. Дальняя

Хотите убедиться в качестве нашей работы своими глазами и посетить наши реальные строящиеся объекты на любой стадии ремонта? Запишитесь на просмотр по телефону +7 900 266 11 55 или заполните форму.
     Объект проектировался зимой 2018 - 2019 г. Реализован в июне 2019 года.
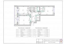
Дизайн-проект интерьера 2-х комнатной квартиры по ул. Дальняя
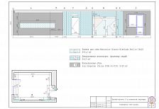
Дизайн-проект интерьера 2-х комнатной квартиры по ул. Дальняя
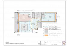
Дизайн-проект интерьера 2-х комнатной квартиры по ул. Дальняя
Дизайн-проект интерьера 2-х комнатной квартиры по ул. Дальняя
ул. Дальняя
площадь: 80 м2
количество комнат: 2
Калькулятор ремонта
Калькулятор ремонта
Обсудим ваш ремонт или проект подробнее?
Звоните: +7 918 240 60 10 
Пишите: goldhands2004@mail.ru
Или оставьте заявку, и мы перезвоним в ближайшее время
Оставляя заявку на звонок на сайте, вы соглашаетесь с политикой конфиденциальности и условиями обработки данных.